485 S 8 th Street, Shandon, CA 93461 (MLS # SC25224531)

Price $675,000
Status Active
Size 3,000 sqft
Lot Size 10.00 ac
Days on Market 46
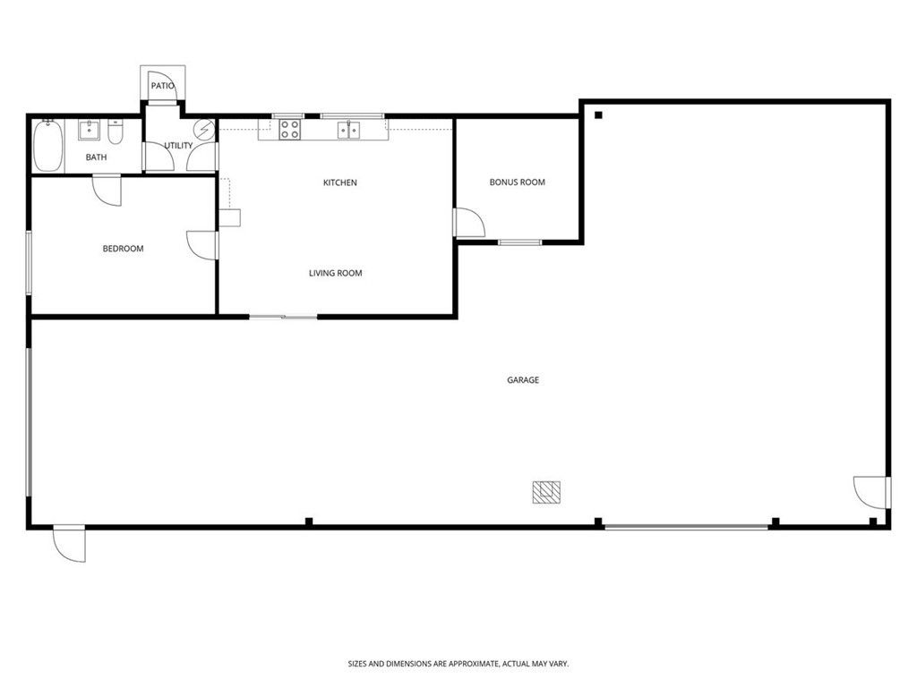
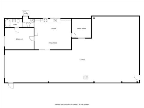
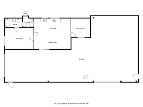
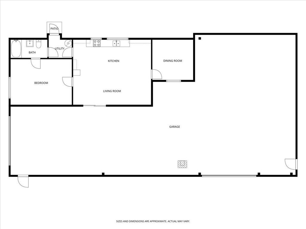
Unique 10-acre investment property located in Shandon, walking distance to the town of Shandon and just a 24 minute drive to downtown Paso Robles. This flat, rectangular, fully fenced parcel offers excellent flexibility for possible agriculture uses, storage, or future custom home or modular home. Key improvements include a 3,000± sq. ft. enclosed agricultural building with two roll-up doors, allowing large size or regular size vehicle or RV storage. The building is serviced with electricity and contains a 700± sq. ft. apartment (kitchen, living room, bedroom, bathroom, bonus room, mudroom, washer/dryer hookups), offering immediate livability or on-site manager housing. The property features two wells: one producing approximately 14 GPM into a 5,000-gallon storage tank with booster system, and a second well positioned to support as backup or additional water needs. This location provides convenient proximity to Shandon amenities (school, park, and market all within walking distance) while maintaining rural flexibility. The property is suitable for possible equipment storage, large or regular size vehicle storage, some agricultural operations, or residential construction. Special financing available!
Property Type(s): Commercial
Last Updated 9/24/2025 Year Built 1992
Community SHDN - Shandon County San Luis Obispo

Additional Details

AIR Ductless, Electric
AIR CONDITIONING Yes
AREA SHDN - Shandon
HEAT Ductless, Electric
LOT 10 acre(s)
LOT DESCRIPTION Agricultural, Level, Near Public Transit, Rectangular Lot
STORIES 1
UTILITIES Electricity Connected
WATER Private, Well

Location

 

Contact us about this Property

 / 
We respect your online privacy and will never spam you. By submitting this form with your telephone number you are consenting for Amy Daane to contact you even if your name is on a Federal or State "Do not call List".

Listed with BHGRE HAVEN PROPERTIES

The multiple listing data appearing on this website, or contained in reports produced therefrom, is owned and copyrighted by California Regional Multiple Listing Service, Inc. ("CRMLS") and is protected by all applicable copyright laws. Information provided is for viewer's personal, non-commercial use and may not be used for any purpose other than to identify prospective properties the viewer may be interested in purchasing. All listing data, including but not limited to square footage and lot size is believed to be accurate, but the listing Agent, listing Broker and CRMLS and its affiliates do not warrant or guarantee such accuracy. The viewer should independently verify the listed data prior to making any decisions based on such information by personal inspection and/or contacting a real estate professional.

Based on information from California Regional Multiple Listing Service, Inc. as of 10/25/25 1:59 PM PDT and /or other sources. All data, including all measurements and calculations of area, is obtained from various sources and has not been, and will not be, verified by broker or MLS. All information should be independently reviewed and verified for accuracy. Properties may or may not be listed by the office/agent presenting the information

This IDX solution is (c) Diverse Solutions 2025.

Email a Friend

LATEST CENTRAL COAST LISTINGS

 

LATEST AVE PROPERTIES

1079 Pauline Way, San Luis Obispo 93401-CONDO

  • Beds: 3
  • Baths: 3
  • 1759 sq ft
  • Condo, Single Family Home
  • $925,000

4635 Deer Creek Way, Paso Robles, CA 93446 – 1 Acre

  • Beds: 4
  • Baths: 3
  • 2681 sq ft
  • Ranch, Ranchette, Single Family Home
  • $875,000