948 Huston Street, Grover Beach, CA 93433 (MLS # SC25196839)

Price $775,000
Status Active
Beds 0
Baths 0 Bath
Home size n/a
Lot Size 37,026 sqft
Days on Market 161
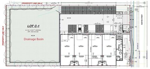
Prime industrial/warehouse zoned lot in Grover Beach with building approvals for a multi-tenant metal warehouse. A rare opportunity in San Luis Obispo County where warehouse land is scarce. 11,926 +/- SF Total Building Area: Configurable as a single warehouse or divisible into four 2,000-3,000 SF suites. High Ceilings: Up to 32' clear height, ideal for versatile industrial uses. Ample Parking: Supports many use types. Most Popular Product Type: Small warehouse units are in high demand with ever increasing rents. Plans Fully Approved by the City of Grover Beach: Streamlined development process. Flexible Use: Perfect for owner-users or investors seeking a high-demand commercial real estate asset. Versatility: Versatile lot for warehouse/industrial/yard uses; current approvals optional, new project design possible. This lot's desirable price point, building approvals, size and zoning make it a standout investment in the hot warehouse market. Don't miss out on this scarce opportunity to develop a premium warehouse property in Five Cities.
Property Type(s): Lot/Land/Acreage
Last Updated 9/2/2025 Tract Grover Beach (330)
Year Built 0 Community GRVC - Grover Beach
County San Luis Obispo

Additional Details

AREA GRVC - Grover Beach
LOT 0.85 acre(s)
LOT DESCRIPTION Level
LOT DIMENSIONS 37026
SUBDIVISION Grover Beach (330)
VIEW DESCRIPTION None
WATER Public

Location

 

Contact us about this Property

 / 
We respect your online privacy and will never spam you. By submitting this form with your telephone number you are consenting for Amy Daane to contact you even if your name is on a Federal or State "Do not call List".

Listed with Colliers Tingey International Inc.

The multiple listing data appearing on this website, or contained in reports produced therefrom, is owned and copyrighted by California Regional Multiple Listing Service, Inc. ("CRMLS") and is protected by all applicable copyright laws. Information provided is for viewer's personal, non-commercial use and may not be used for any purpose other than to identify prospective properties the viewer may be interested in purchasing. All listing data, including but not limited to square footage and lot size is believed to be accurate, but the listing Agent, listing Broker and CRMLS and its affiliates do not warrant or guarantee such accuracy. The viewer should independently verify the listed data prior to making any decisions based on such information by personal inspection and/or contacting a real estate professional.

Based on information from California Regional Multiple Listing Service, Inc. as of 2/10/26 1:03 AM PST and /or other sources. All data, including all measurements and calculations of area, is obtained from various sources and has not been, and will not be, verified by broker or MLS. All information should be independently reviewed and verified for accuracy. Properties may or may not be listed by the office/agent presenting the information

This IDX solution is (c) Diverse Solutions 2026.

Email a Friend

LATEST CENTRAL COAST LISTINGS

 

LATEST AVE PROPERTIES

950 Tarragon Lane, San Luis Obispo, CA 93401 – Townhome

  • Beds: 3
  • Baths: 3
  • 1417 sq ft
  • Condo
  • $724,000

1214 Mill St., San Luis Obispo, CA 93401-Mills Act Property

  • Beds: 3
  • Baths: 2.5
  • 1386 sq ft
  • Duplex, Single Family Home
  • $1,775,000