859 Ricardo Court, San Luis Obispo, CA 93401 (MLS # SC25193436)

Price $0
Status Active
Size 3,200 sqft
Lot Size 10,128 sqft
Days on Market 50
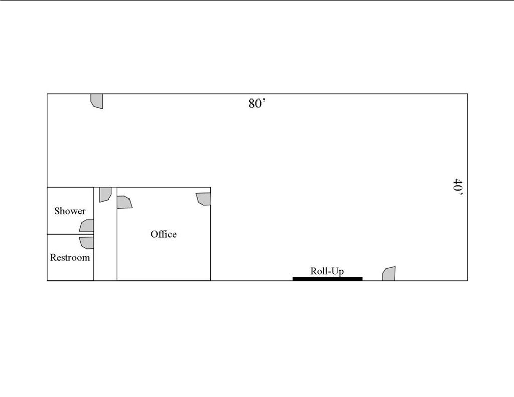
859 Ricardo Court has twelve on-site parking spaces, a restroom, a shower, a large private office, a roll-up door, and a warehouse with skylights.
Property Type(s): Commercial
Last Updated 8/27/2025 Year Built 0
Community SLO - San Luis Obispo County San Luis Obispo

Additional Details

AREA SLO - San Luis Obispo
LOT 10128 sq ft
STORIES 1
UTILITIES Water Not Available
WATER None

Location

 

Contact us about this Property

 / 
We respect your online privacy and will never spam you. By submitting this form with your telephone number you are consenting for Amy Daane to contact you even if your name is on a Federal or State "Do not call List".

Listed with Anderson & Senn Commercial Real Estate

The multiple listing data appearing on this website, or contained in reports produced therefrom, is owned and copyrighted by California Regional Multiple Listing Service, Inc. ("CRMLS") and is protected by all applicable copyright laws. Information provided is for viewer's personal, non-commercial use and may not be used for any purpose other than to identify prospective properties the viewer may be interested in purchasing. All listing data, including but not limited to square footage and lot size is believed to be accurate, but the listing Agent, listing Broker and CRMLS and its affiliates do not warrant or guarantee such accuracy. The viewer should independently verify the listed data prior to making any decisions based on such information by personal inspection and/or contacting a real estate professional.

Based on information from California Regional Multiple Listing Service, Inc. as of 10/15/25 1:06 PM PDT and /or other sources. All data, including all measurements and calculations of area, is obtained from various sources and has not been, and will not be, verified by broker or MLS. All information should be independently reviewed and verified for accuracy. Properties may or may not be listed by the office/agent presenting the information

This IDX solution is (c) Diverse Solutions 2025.

Email a Friend

LATEST CENTRAL COAST LISTINGS

 

LATEST AVE PROPERTIES

1079 Pauline Way, San Luis Obispo 93401-CONDO

  • Beds: 3
  • Baths: 3
  • 1759 sq ft
  • Condo, Single Family Home
  • $925,000

4635 Deer Creek Way, Paso Robles, CA 93446 – 1 Acre

  • Beds: 4
  • Baths: 3
  • 2681 sq ft
  • Ranch, Ranchette, Single Family Home
  • $875,000