100 W Ramona Avenue, Grover Beach, CA 93433 (MLS # PI25264493)

Price $1,400,000
Status Active
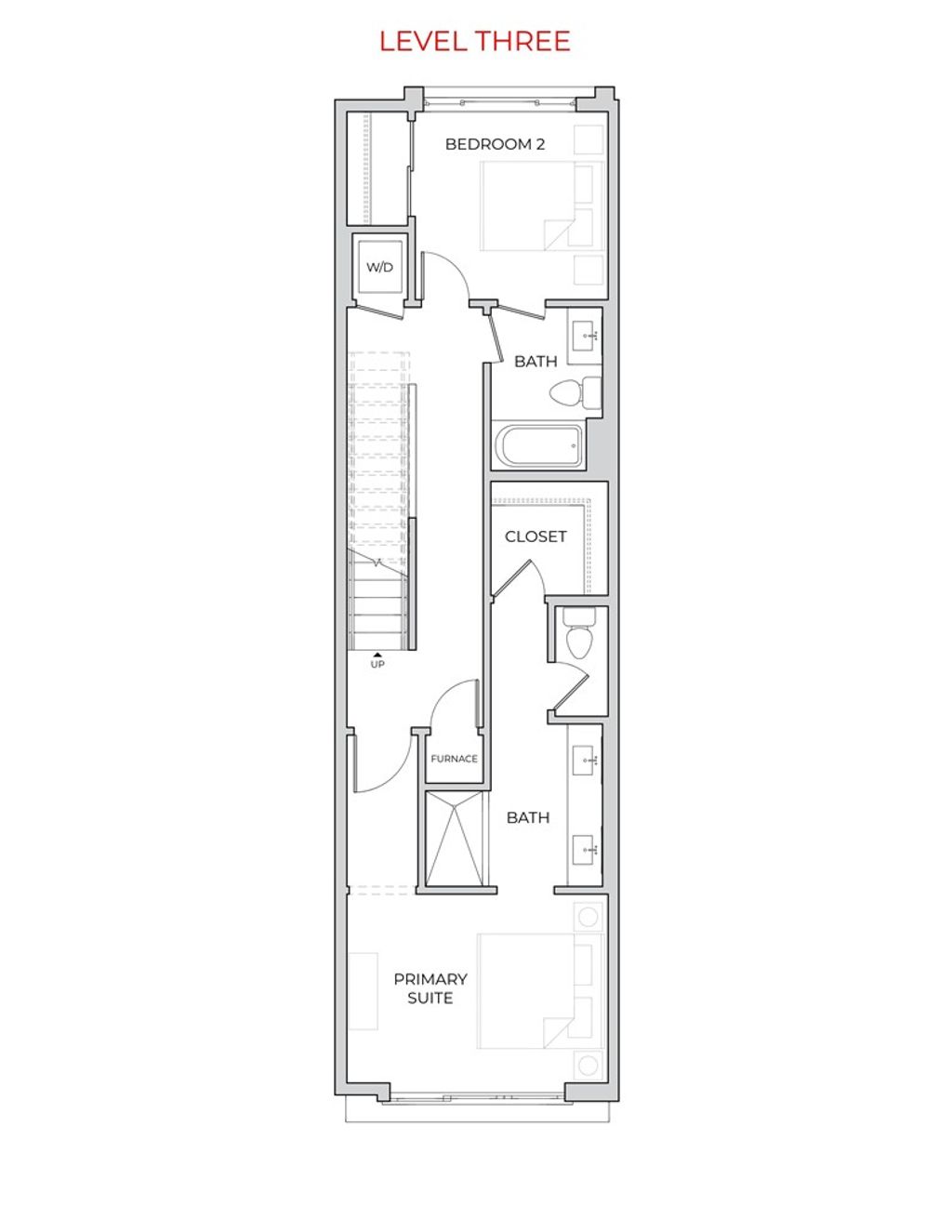
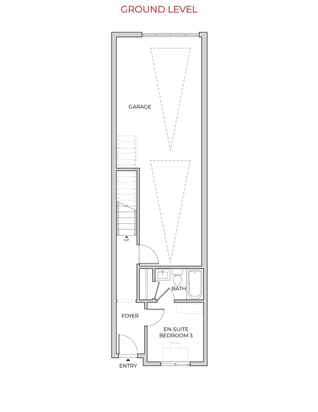
Beds 3
Baths 3.5 Baths
Home size 1,967 sqft
Lot Size n/a
Days on Market 81
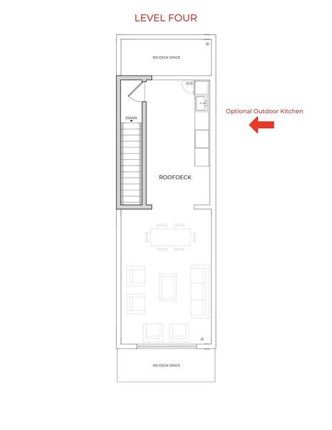
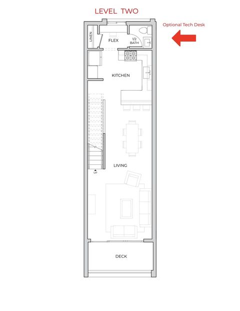
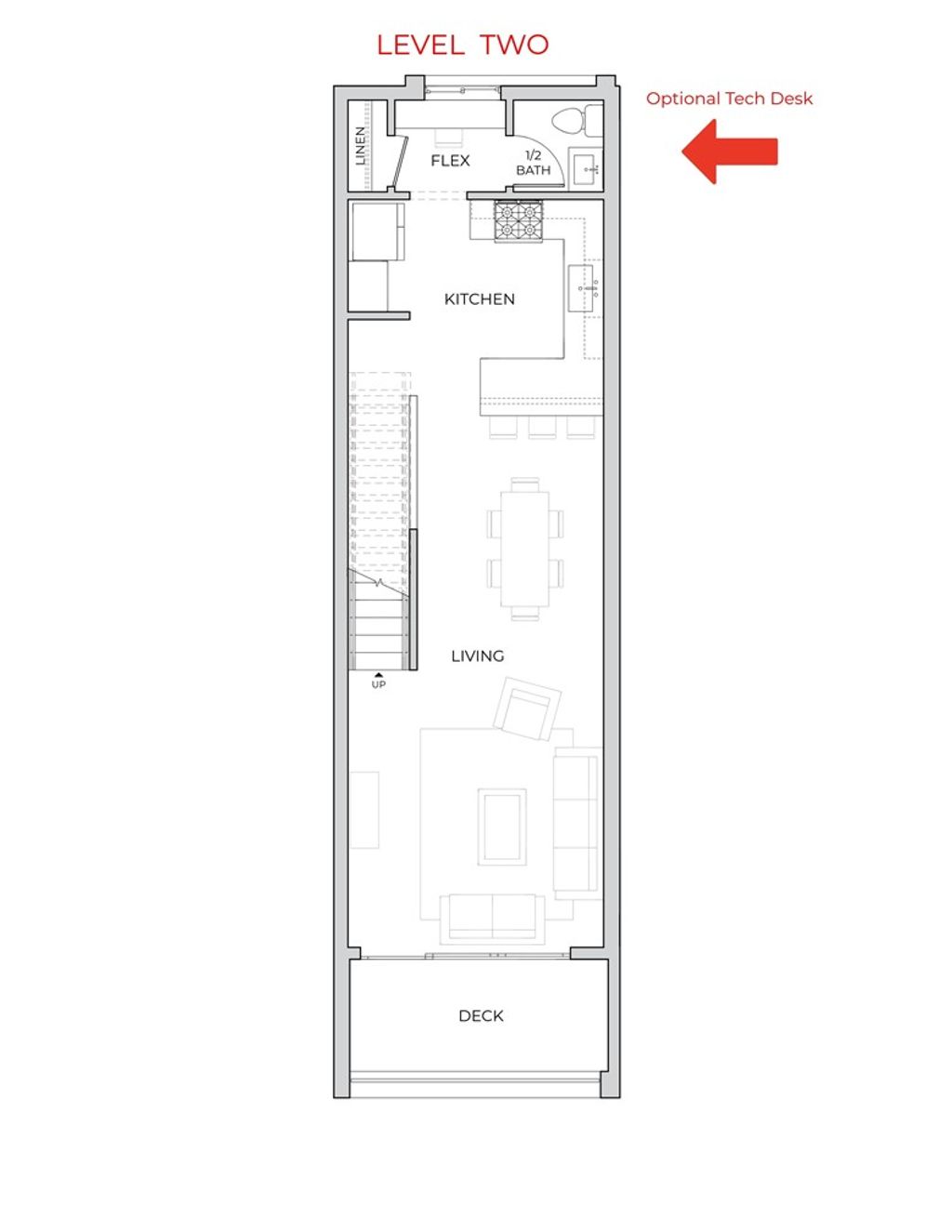
BRAND NEW CONSTRUCTION - Welcome to Lot 7 at Trinity, a limited collection of 23 luxury ocean-view townhomes and condominiums with spacious rooftop decks, located in Grover Beach's West End, just minutes from the shoreline. This contemporary 3-bedroom, 3.5-bath townhome offers open-concept living with modern and thoughtful finishes throughout. The kitchen features quartz countertops, designer cabinetry, and stainless-steel appliances. Multiple decks provide indoor-outdoor living. The primary bedroom is a tranquil retreat with a large sliding door to let the ocean breeze in and features an en-suite, spa-inspired bath and a spacious closet. The rooftop deck offers ocean and sunset views, with options for an outdoor kitchen and hot tub. Additional highlights include a two-car tandem garage with EV pre-wiring. The home is located near local beaches, cafes, farmers markets, and local wineries. Enjoy all that the Central Coast has to offer"”all from your new coastal retreat.
Property Type(s): Condo/Townhouse/Co-Op
Last Updated 11/21/2025 Tract Trinity Townhomes and Condos
Year Built 2026 Community GRVC - Grover Beach
Garage Spaces 2.0 County San Luis Obispo

Additional Details

AIR Central Air
AIR CONDITIONING Yes
APPLIANCES Dishwasher, Disposal, Gas Oven, Gas Range, Water Heater
AREA GRVC - Grover Beach
CONSTRUCTION Stucco, Wood Siding
EXTERIOR Balcony
GARAGE Attached Garage, Yes
HEAT Central
HOA DUES 201.15|Monthly
INTERIOR Breakfast Bar, Open Floorplan, Recessed Lighting, Walk-In Closet(s)
LOT 0
LOT DESCRIPTION Level, Zero Lot Line
PARKING Attached, Garage, On Street, Tandem
POOL DESCRIPTION None
SEWER Public Sewer
STORIES 3+
STYLE Contemporary, Modern
SUBDIVISION Trinity Townhomes and Condos
UTILITIES Cable Available, Electricity Available, Natural Gas Available, Water Available
VIEW Yes
VIEW DESCRIPTION Hills, Neighborhood, Panoramic
WATER Public
WATERFRONT DESCRIPTION Beach Access

Location

 

Contact us about this Property

 / 
We respect your online privacy and will never spam you. By submitting this form with your telephone number you are consenting for Amy Daane to contact you even if your name is on a Federal or State "Do not call List".

Listed with Coastal Community Builders

The multiple listing data appearing on this website, or contained in reports produced therefrom, is owned and copyrighted by California Regional Multiple Listing Service, Inc. ("CRMLS") and is protected by all applicable copyright laws. Information provided is for viewer's personal, non-commercial use and may not be used for any purpose other than to identify prospective properties the viewer may be interested in purchasing. All listing data, including but not limited to square footage and lot size is believed to be accurate, but the listing Agent, listing Broker and CRMLS and its affiliates do not warrant or guarantee such accuracy. The viewer should independently verify the listed data prior to making any decisions based on such information by personal inspection and/or contacting a real estate professional.

Based on information from California Regional Multiple Listing Service, Inc. as of 2/10/26 2:09 AM PST and /or other sources. All data, including all measurements and calculations of area, is obtained from various sources and has not been, and will not be, verified by broker or MLS. All information should be independently reviewed and verified for accuracy. Properties may or may not be listed by the office/agent presenting the information

This IDX solution is (c) Diverse Solutions 2026.

Email a Friend

LATEST CENTRAL COAST LISTINGS

 

LATEST AVE PROPERTIES

950 Tarragon Lane, San Luis Obispo, CA 93401 – Townhome

  • Beds: 3
  • Baths: 3
  • 1417 sq ft
  • Condo
  • $724,000

1214 Mill St., San Luis Obispo, CA 93401-Mills Act Property

  • Beds: 3
  • Baths: 2.5
  • 1386 sq ft
  • Duplex, Single Family Home
  • $1,775,000