3230 Riverside Avenue, Paso Robles, CA 93446 (MLS # NS26007686)

Price $0
Status Active
Size 93,789 sqft
Lot Size 5.74 ac
Days on Market 2
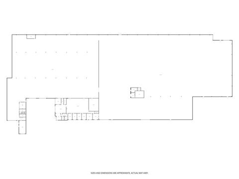
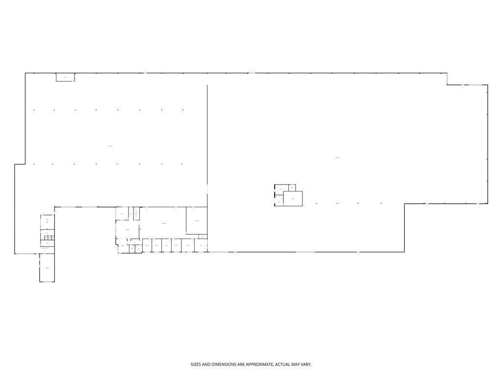
3230 Riverside Avenue | Paso Robles, CA 93446 ±93,789 SF Divisible Industrial / Wine Storage Facility | SUBLEASE Units: 150, 170, 180, 200, 210 & 220 Asking Rate: $0.94 PSF NNN NNN Estimate: $0.17 PSF (LOW NNNs "” cost advantage) Total Est. Rate: $1.11 PSF (Est.) Availability: Divisible "” inquire for suite breakouts Transaction Type: SUBLEASE Property Overview: Rare large-span industrial sublease opportunity in Paso Robles totaling approximately ±93,789 SF across multiple combined units. The space is improved for wine storage with insulation and cooling infrastructure in place, making it a premier option for temperature-controlled warehousing, wine industry users, distribution, or specialized storage. The property features two loading docks, high ceilings, good power, and a professional office buildout including private offices and meeting rooms. Located near the US-101 Riverside interchange, this facility provides excellent regional access and a strategic location within Paso Robles' core industrial corridor. Key Highlights ±93,789 SF total (Divisible "” configurations available) SUBLEASE opportunity Wine storage improvements in place Insulated buildout Cooling infrastructure Two (2) loading docks High ceilings / clear height (excellent storage volume) Strong power capacity Professional office buildout + meeting rooms Rare large-span facility in Paso with dock loading Low NNN expense: $0.17 PSF (advantage vs. competing facilities) Excellent access to US-101 via Riverside interchange (fast on/off-ramp access) Ideal For Wine storage / wine logistics & fulfillment Cold storage / insulated distribution Warehouse & distribution Packaging / bottling support operations Specialty storage / regional service users Light manufacturing / assembly Call to Action Opportunities of this scale with dock loading and wine-storage improvements are rarely available in Paso Robles.
Property Type(s): Commercial
Last Updated 1/12/2026 Year Built 0
Community PSOR - Paso Robles County San Luis Obispo

Additional Details

AREA PSOR - Paso Robles
LOT 5.7392 acre(s)
LOT DESCRIPTION Landscaped
LOT DIMENSIONS 250000
STORIES 1
WATER Public

Location

 

Contact us about this Property

 / 
We respect your online privacy and will never spam you. By submitting this form with your telephone number you are consenting for Amy Daane to contact you even if your name is on a Federal or State "Do not call List".

Listed with Pacifica Commercial Realty

The multiple listing data appearing on this website, or contained in reports produced therefrom, is owned and copyrighted by California Regional Multiple Listing Service, Inc. ("CRMLS") and is protected by all applicable copyright laws. Information provided is for viewer's personal, non-commercial use and may not be used for any purpose other than to identify prospective properties the viewer may be interested in purchasing. All listing data, including but not limited to square footage and lot size is believed to be accurate, but the listing Agent, listing Broker and CRMLS and its affiliates do not warrant or guarantee such accuracy. The viewer should independently verify the listed data prior to making any decisions based on such information by personal inspection and/or contacting a real estate professional.

Based on information from California Regional Multiple Listing Service, Inc. as of 1/14/26 2:22 AM PST and /or other sources. All data, including all measurements and calculations of area, is obtained from various sources and has not been, and will not be, verified by broker or MLS. All information should be independently reviewed and verified for accuracy. Properties may or may not be listed by the office/agent presenting the information

This IDX solution is (c) Diverse Solutions 2026.

Email a Friend

LATEST CENTRAL COAST LISTINGS

 

LATEST AVE PROPERTIES

351 Ramona Dr., San Luis Obispo, CA 93405

  • Beds: 3
  • Baths: 2
  • 1700 sq ft
  • Single Family Home
  • $1,395,000

1833 Southview Circle, Paso Robles, CA 93442

  • Beds: 2
  • Baths: 2
  • 923 sq ft
  • Duplex, Single Family Home
  • $425,000